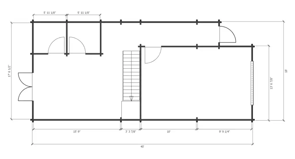
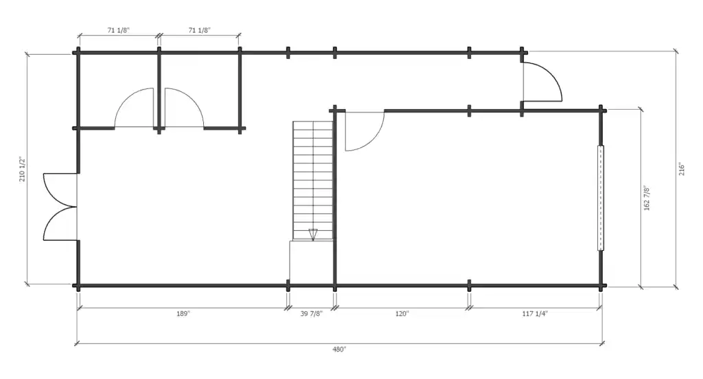
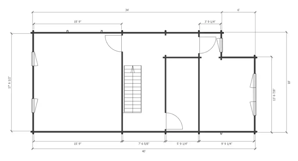
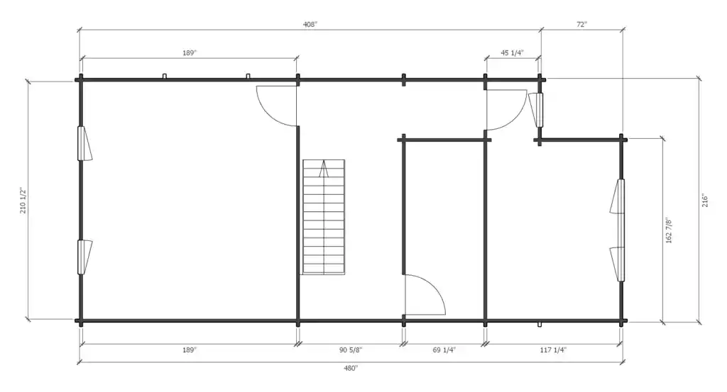
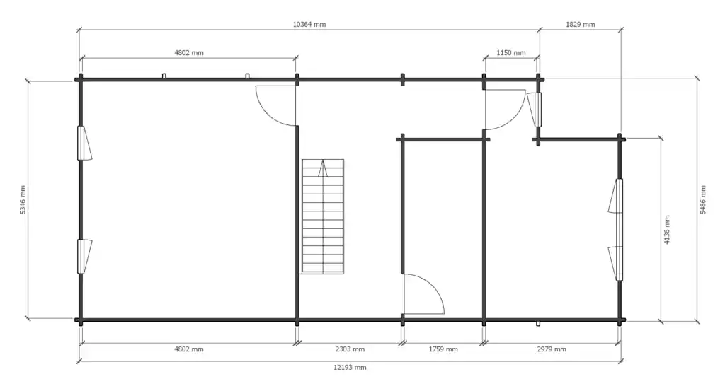
Albert Townhouse is an ideal example of what we can can offer for urban housing whether it’s a townhouse, row housing, condominiums, or single family dwellings. This building assembles fast with the option of maintenance free exterior with an all natural wood interior. This model has 2 bedrooms, 2 bathrooms, garage and a back covered deck. A great alternative form of construction that is less than conventional framing, stronger, and more energy efficient
Kit includes:
- ready to assemble on a concrete slab or wood foundation
- pre-cut, numbered exterior walls
- pre-cut, numbered interior walls
- pre-cut, numbered gable components
- vaulted, cathedral ceilings
- sidewall height main floor 95″ (2413mm)
- roof pitch 4/12 (18 degrees)
- pre-cut 4″ x 8″ (100mm x 200mm) glulam roof purlins/beams, spaced 22″ (558mm) or less
- pre-cut, numbered 3/4″ (18mm) tongue & groove roof boards
- pre-cut, numbered fascia boards
- 3007 total sq’ of wall area
- 1975 sq’ of exterior wall surface
- 172 lineal’ per row
- 893 sq’ roof area (83 sq’ meters)
- 6 interior doors 32″x 80″ (812mm x 2040mm), hardware
- 3 single wide wood windows 30″x 39″ (765mm x 990mm)
- 1 triple wide wood window 90″x 39″ (2295mm x 990mm)
- 1 exterior door 36″x 80″ (990mm x 2040mm) 1/2 glass tempered, multi locking hardware
- 1 exterior double door 61″x 80″ (1550mm x 2040mm) 1/2 glass tempered, multi locking hardware
- deck posts, railing with vertical balustrades
- 2 spare wall logs/spare roof boards
- 3,300 – 8″ log screws to connect each row, gable components, purlins
- 12 rolls 107 sq’ (10 sq meters) roofing underlay (NEW 2026)
- packaged/wrapped for sequence of assembly
- FREE SHIPPING
- FOUNDATION SIZE DRAWING
- STAMPED STRUCTURAL ENGINEERING
NOTE: Kits include residential grade, double glazed wood windows & doors. Rough openings can be created to accommodate locally purchased windows & doors






















