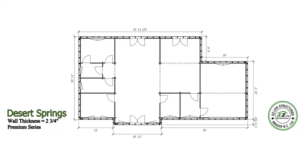
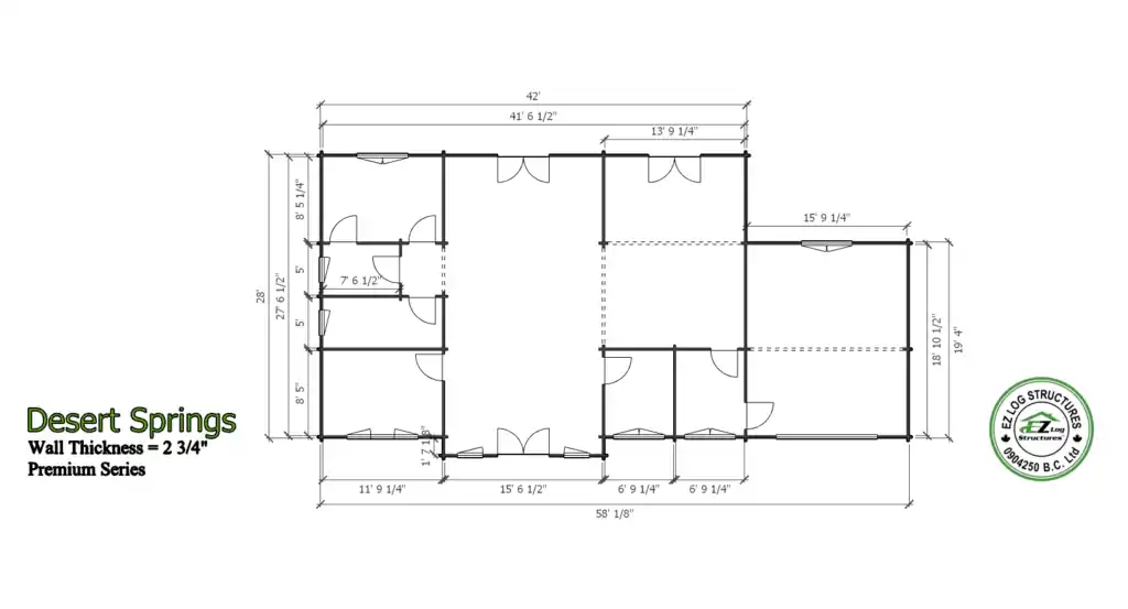
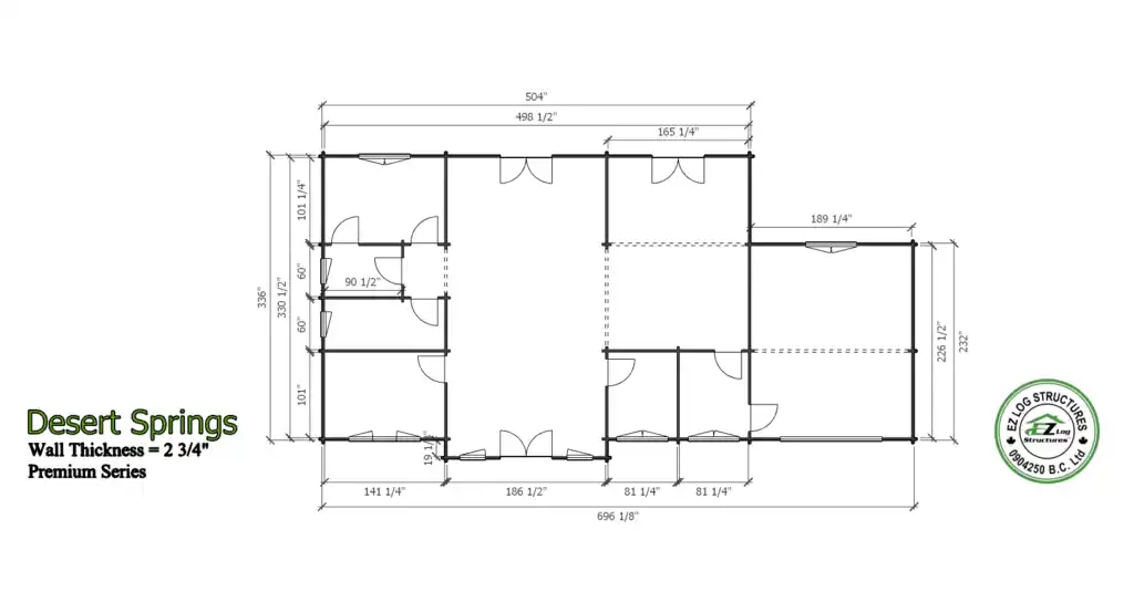
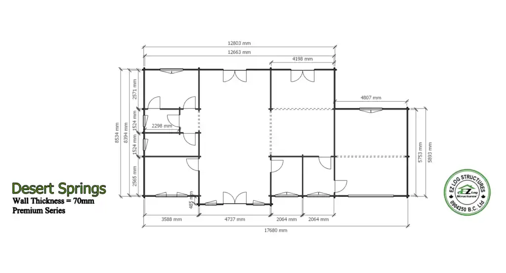
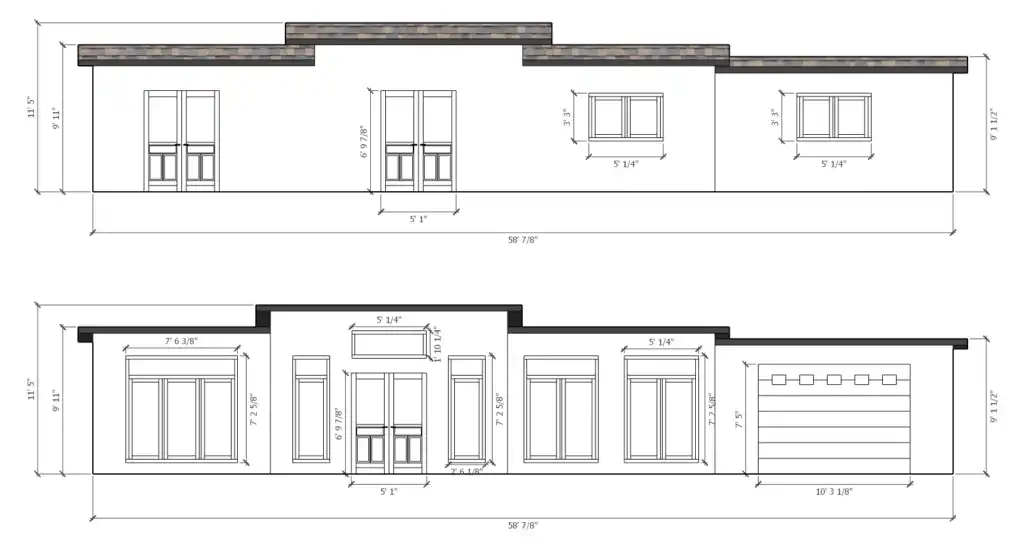
Desert Springs is a contemporary spacious home with just under 1640 sq’ including the garage, can be a 3 or 2 bedroom & 2 bathrooms. The roof line has 3 levels all are vaulted/cathedral ceilings with the center section having 11′ high ceilings at the front and 9’11” high ceilings at the back. The front wall has plenty of windows to let the light in. This kit can be assembled by 3 people in 12 days
To insulate all our homes, attach studs to the exterior with insulation and then cover the studs with EZ Log wood siding or any choice of locally purchased composite siding, stucco, brick or even stone.
Kit includes:
- ready to assemble on a concrete slab or wood foundation
- pre-cut, numbered exterior walls
- pre-cut, numbered interior walls
- pre-cut, numbered gable components
- vaulted, cathedral ceilings
- back wall height 101″ (2565mm)
- front wall height 137″ (3480mm)
- roof pitch 0.5/12 (2 degrees)
- pre-cut 4″ x 8″ (100mm x 200mm) glulam roof purlins/beams, spaced 22″ (558mm) or less
- pre-cut, numbered 3/4″ (18mm) tongue & groove roof boards
- pre-cut, numbered fascia boards
- 2928 total sq’ of wall area
- 1765 sq’ of exterior wall surface
- 314 lineal’ per row
- 1770 sq’ roof area (164 sq’ meters)
- 6 interior doors 32″x 80″ (812mm x 2040mm), hardware
- 2 single wide wood windows 30″x 39″ (765mm x 990mm)
- 2 double wide wood window 60″x 39″ (1530mm x 990mm)
- 2 single wide wood transom window 30″x 83″ (765mm x 2200mm)
- 2 double wide wood windows 60″x 83″ (1530mm x 2200mm)
- 1 triple wide wood transom window 90″x 83″ (2295mm x 2200mm)
- 1 single wide wood transom window 61″x 24″ (1549mm x 610mm) non-opening
- 3 exterior double doors 61″ x 80″ (1550mm x 2040mm) 1/2 glass tempered, multi locking hardware
- 1 rough opening for locally supplied fire rated door from garage to house
- 1 rough opening for locally supplied overhead garage door
- 2 spare wall logs/spare roof boards
- 3,000 – 8″ log screws to connect each row, gable components, purlins
- 23 rolls 107 sq’ (10 sq meters) roofing underlay (NEW 2026)
- packaged/wrapped for sequence of assembly
- NOTE: overhead garage door not included
- FREE SHIPPING
- FOUNDATION SIZE DRAWING
- STAMPED STRUCTURAL ENGINEERING
NOTE: Kits include residential grade, double glazed wood windows & doors. Rough openings can be created to accommodate locally purchased window & doors
















