Garage 2630 is a double car garage with solid wood walls using 1-5/8″ x 4-3/8″ (40mm x 113mm) components. Once assembled, studs & siding are applied to the exterior. We offer 2 types of tongue & groove Pine siding plus an extruded PVC maintenance free siding. The main feature of our garages is the all wood interior with vaulted/cathedral ceilings, ready to hang your tools
Kit includes:
- ready to assemble on a concrete slab
- treated starter plate 1-5/8″ x 5-1/8″ (40mm x 129mm)
- 1-5/8” x 4-3/8″ (40mm x 113mm) tongue & groove logs
- pre-cut, numbered exterior walls
- pre-cut, numbered interior walls
- pre-cut, numbered gable components
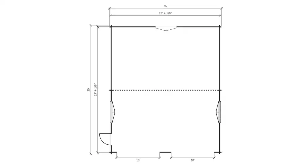
- sidewall height 95″ (2413mm)
- 2-3/4” x 9-1/4” (70mm x 235mm) glulam roof purlins/beams, spaced 22″ (558mm) or less
- vaulted, cathedral ceilings
- roof pitch 4/12 (18 degrees)
- roof overhang 12” (300mm)
- center gable
- metal joist/purlin hangers for center gable
- pre-cut, numbered ¾″ (18mm) tongue & groove roof boards
- pre-cut, numbered fascia boards
- 3 – double wide wood windows 60″x39″ (1530mm x 990mm)
- 1 – entry door 1/2 glass tempered 32″ x 80″ (813mm x 2033mm)
- 970 sq’ of exterior wall surface
- 110 lineal’ per row
- 750 – 6″ log screws to connect each row, gable components, purlins
- GARAGE OVERHEAD DOORS NOT INCLUDED
- STAMPED STRUCTURAL ENGINEERING included when a siding kit is applied. The vertical studs are required to meet structural requirements for building codes. Stud and siding can be purchased locally
















