hampton

Premium Model / 70 mm

$125,527 CAD

Free Shipping
3

Bedrooms

1

Bathrooms

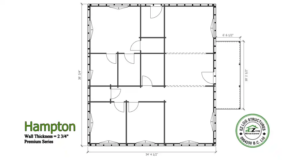
445"x401"

Cabin size

3/12

Roof pitch

1242

Size sqft

95"

Wall height

144"

Ridge height

70mm

Wall thickness

Hampton is a  comfortable 1240 sq’ home with 3 bedrooms & 2 bathrooms with a large open kitchen & living area plus a front covered entry. Kit can be assembled by 3 people in 9 days

Kit includes:

  • ready to assemble on a concrete slab or wood foundation
  • pre-cut, numbered exterior walls
  • pre-cut, numbered interior walls
  • pre-cut, numbered gable components
  • sidewall height 95″ (2413mm)
  • vaulted, cathedral ceilings
  • roof pitch 3/12 (14 degrees)
  • pre-cut 4″ x 8″ (100mm x 200mm) glulam roof purlins/beams, spaced 22″ (558mm) or less
  • pre-cut, numbered 3/4″ (18mm) tongue & groove roof boards
  • pre-cut, numbered fascia boards
  • 2909 total sq’ of wall area
  • 1257 sq’ of exterior wall surface
  • 288 lineal’ per row
  • 1426 sq’ roof area (132 sq’ meters)
  • 7 interior doors 32″x80″ (812mm x 2040mm), hardware
  • 1 single wide wood windows 30″x39″ (765mm x 990mm) 
  • 8 double wide wood window 60″x39″ (1530mm x 990mm)
  • 2 exterior door 36″x80″ (990mm x 2040mm) 1/2 glass tempered, multi locking hardware
  • deck posts, railing with vertical balustrades
  • 2 spare wall logs/spare roof boards
  • 3,100 – 8″ log screws to connect each row, gable components, purlins
  • 19 rolls 107 sq’ (10 sq meters) roofing underlay (NEW 2026)
  • packaged/wrapped for sequence of assembly
  • FREE SHIPPING
  • FOUNDATION SIZE DRAWING
  • STAMPED STRUCTURAL ENGINEERING

NOTE: Kits include residential grade, double glazed wood windows & doors. Rough openings can be created to accommodate locally purchased windows & doors