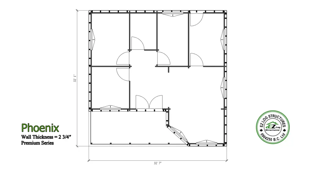
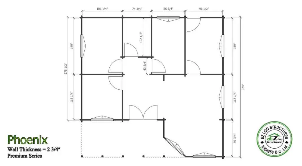
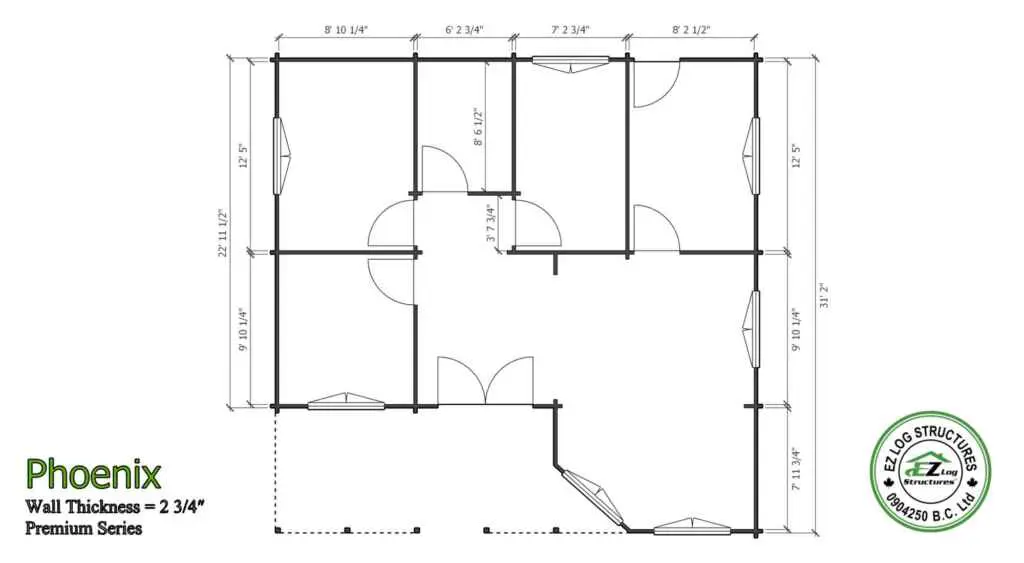
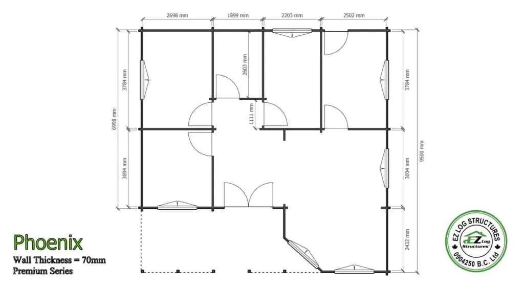
Phoenix is a 3 bedroom home, affordable and easy to assemble. It has vaulted ceilings throughout and is delivered to site and ready to assemble on a concrete slab or wood sub floor. (sq footage is based the total footprint, living space could be less, see floor plans)
Kit includes:
- ready to assemble on a concrete slab or wood foundation
- pre-cut, numbered exterior walls
- pre-cut, numbered interior walls
- pre-cut, numbered gable components
- 4/12 roof pitch (18 degrees)
- vaulted, cathedral ceilings
- sidewall height 95″ (2413mm)
- pre-cut, 100mm x 200mm (4″x 8″) glulam roof purlins spaced 558mm (22″) or less
- pre-cut, numbered (18mm) 3/4″ tongue & groove roof boards
- pre-cut, numbered fascia boards
- 2017 total sq’ of wall area
- 1132 sq’ of exterior wall surface
- 203 lineal’ per row
- 5 interior doors 812mm x 2040mm (32″x 80″)
- 1 double wide wood windows 1530mm x 812mm (60″x 32”)
- 6 double wide wood windows 1530mm x 990mm (60″x 39″)
- 1 exterior door with multi locking hardware 1/2 glass tempered 990mm x 2040mm (36″x 80″)
- 1 exterior double door 1550mm x 2040mm (61″ x 80″) full glass tempered, multi locking hardware
- pre-built deck railings with vertical balustrades
- adjustable posts
- hardware for doors & windows
- 2 spare wall logs/spare roof boards
- 2,300 – 8″ log screws to connect each row, gable components, purlins
- packaged/wrapped and marked for sequence of assembly
- FREE SHIPPING
- FOUNDATION SIZE DRAWING
- STAMPED STRUCTURAL ENGINEERING NOTE: Kits include residential grade, double glazed wood windows & doors. Rough openings can be created to accommodate locally purchased windows & doors

















