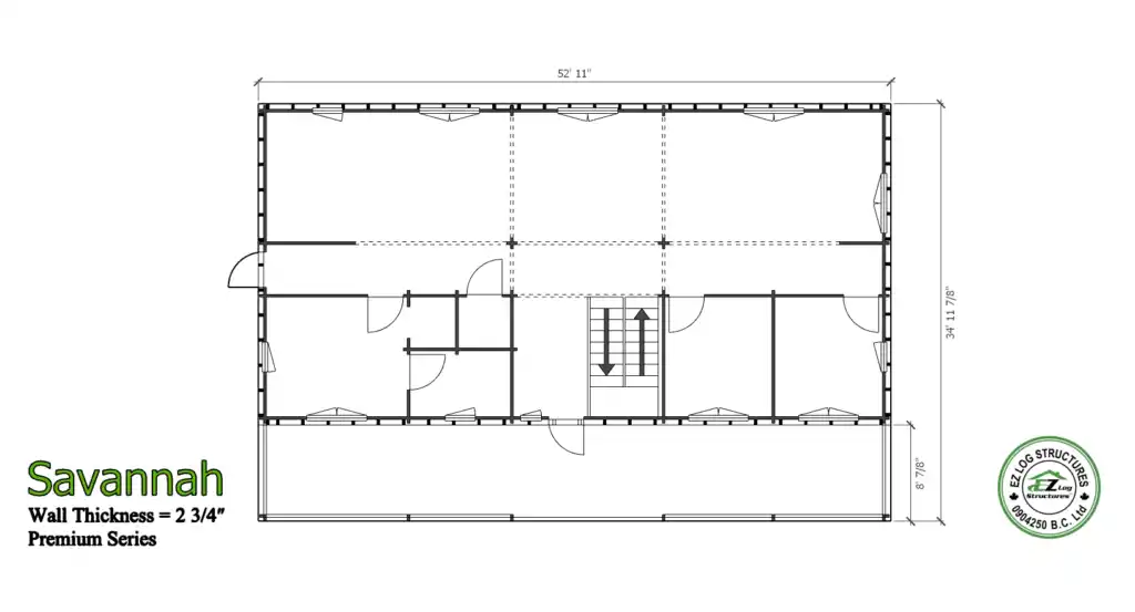
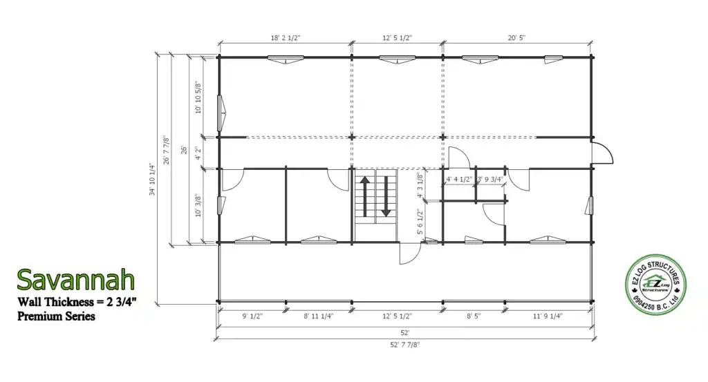
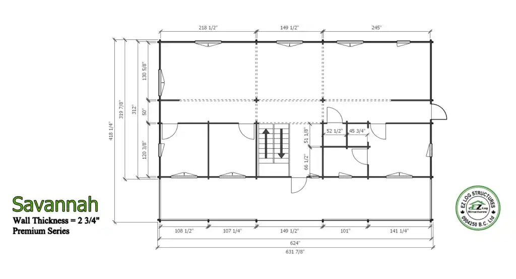
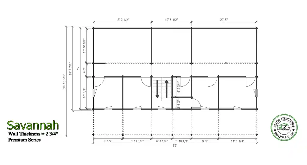
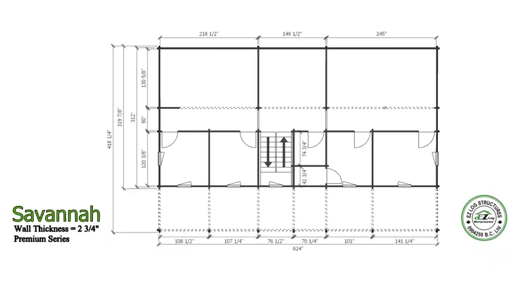
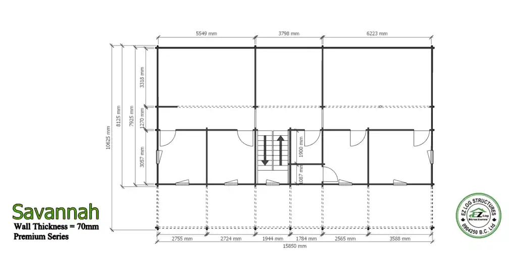
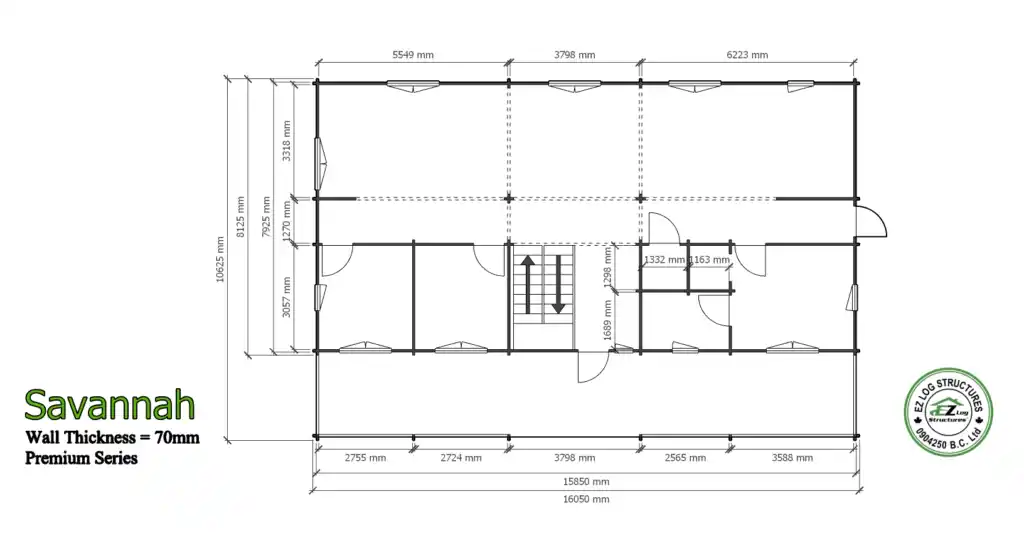
SAVANNAH is one of the most complex home designs we offer and has a high usage of material due to the high walls and overall sq footage. This model can be a 7 bedroom, 3 bath barndominium home for the larger family. The vaulted ceilings throughout provide a spacious open design. Assembly can be done in 15 days with 4 people
Kit includes:
- ready to assemble on a concrete slab or wood foundation
- pre-cut, numbered exterior walls
- pre-cut, numbered interior walls
- pre-cut, numbered gable components
- sidewall height main floor 95″ (2413mm)
- stairs, handrails, landing build to code
- loft floor beams 4″ x 9.5′ (100mm x 240mm) spaced 22″ (558m) or less
- pre-cut loft floor boards 1-1/8″ (28mm)
- vaulted, cathedral ceilings
- roof pitch 3.2/12 (15 degree) 3/12 (14 degree) 5/12 (23 degree)
- pre-cut 4″ x 9.5″ (100mm x 240mm) glulam roof purlins/beams, spaced 22″ (558mm) or less
- pre-cut, numbered 3/4″ (18mm) tongue & groove roof boards
- pre-cut, numbered fascia boards
- 4335 total sq’ of wall area
- 2326 sq’ of exterior wall surface
- 273 lineal’ per row
- 2164 sq’ roof area (201 sq’ meters)
- 11 interior doors 32″x 80″ (812mm x 2040mm), hardware
- 1 single wide wood window 21″ x21″ (530mm x 530mm)
- 11 single wide wood windows 30″x39″ (765mm x 990mm)
- 7 double wide wood window 60″x39″ (1530mm x 990mm)
- 2 exterior doors 36″x80″ (990mm x 2040mm) 1/2 glass tempered, multi locking hardware
- deck posts, railing with vertical balustrades
- 2 spare wall logs/spare roof boards
- 4,500 – 8″ log screws to connect each row, gable components, purlins
- 28 rolls 107 sq’ (10 sq meters) roofing underlay (NEW 2026)
- packaged/wrapped for sequence of assembly
- FREE SHIPPING
- FOUNDATION SIZE DRAWING
- STAMPED STRUCTURAL ENGINEERING
NOTE: Kits include residential grade, double glazed wood windows & doors. Rough openings can be created to accommodate locally purchased windows & doors




















