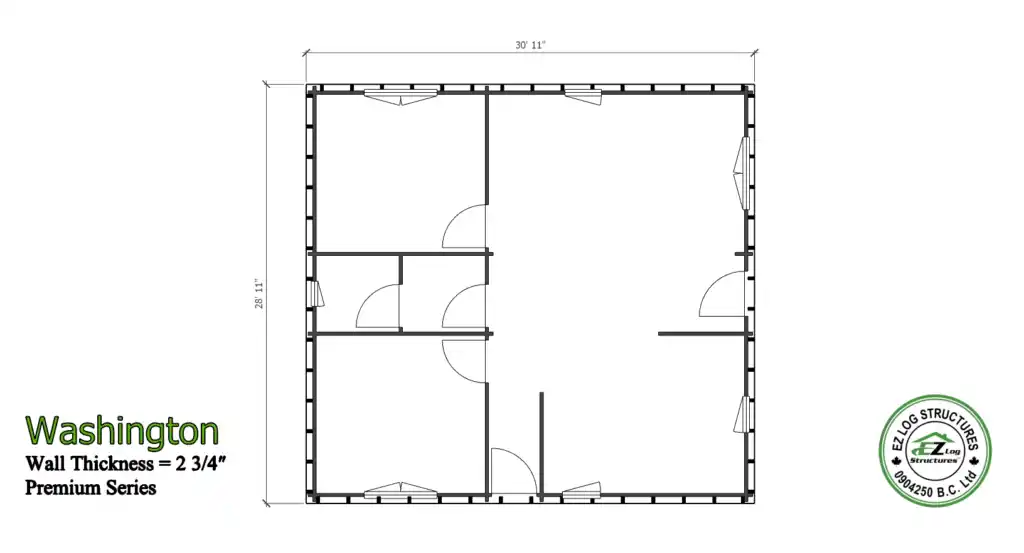
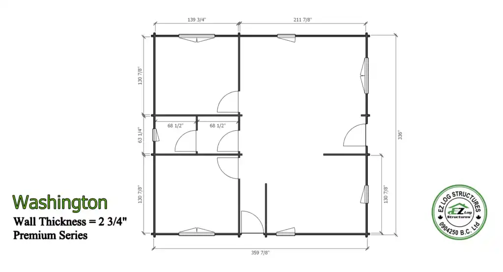
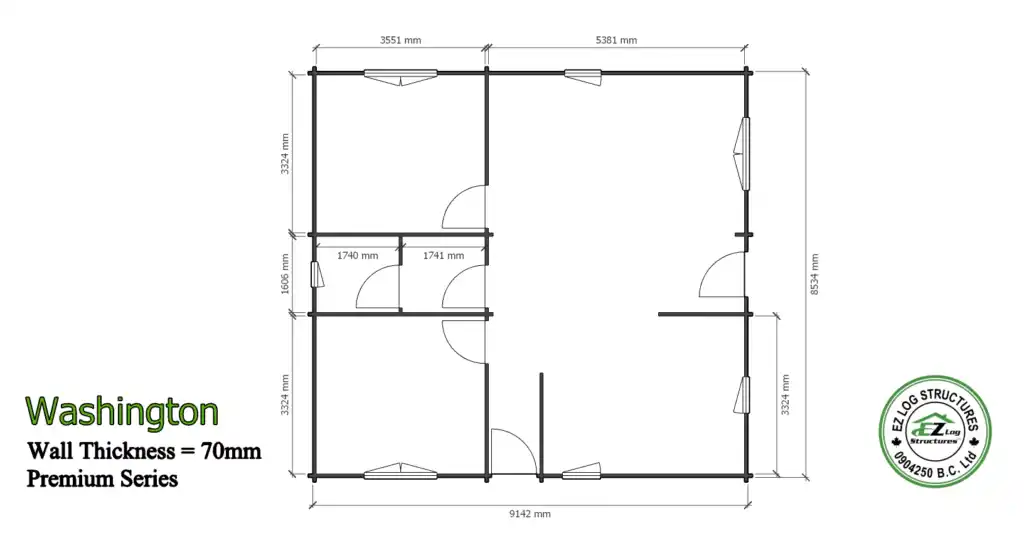
Washington is a very comfortable 2 bedroom home, with exceptional value. This home has 2 bedrooms, 1 bathroom with an opening living space. The front wall and side walls can be reversed during assembly to allow the side entry door on the left or right. The walls are solid wood using 70mm (2-3/4″) thick wall logs with 4″ x 8″ roof beams. The total footprint is 28′ x 30′ for 840 sq’ of space. (sq footage is based the total footprint, living space could be less, see floor plans)
Kit includes:
- ready to assemble on a concrete slab or wood foundation
- pre-cut, numbered exterior walls
- pre-cut, numbered interior walls
- pre-cut, numbered gable components
- vaulted, cathedral ceilings
- sidewall height 95″ (2413mm)
- pre-cut, 100mm x 200mm (4″x 8″) glulam roof purlins, beams, spaced 558mm (22″) or less
- pre-cut, numbered (18mm) 3/4″ tongue & groove roof boards
- pre-cut, numbered fascia boards
- 1822 total sq’ of wall area
- 1046 sq’ of exterior wall surface
- 185 lineal’ per row
- 1004 sq’ roof area (93 sq’ meters)
- 4 interior doors 812mm x 2040mm (32″x 80″)
- 1 single wide wood window 530mm x 530mm (21″x 21″)
- 1 single wide wood windows 765mm x 812mm (30″x 32″)
- 2 single wide wood windows 765mm x 990mm (30″x 39″)
- 3 double wide wood windows 1530mm x 990mm (60″x 39″)
- 2 exterior doors 950mm x 2080mm (36″x 80″) 1/2 glass tempered
- hardware for doors & windows
- 2 spare wall logs/spare roof boards
- 2,100 – 8″ log screws to connect each row, gable components, purlins
- 13 rolls 107 sq’ (10 sq meters) roofing underlay (NEW 2026)
- packaged/wrapped for sequence of assembly
- FREE SHIPPING
- FOUNDATION SIZE DRAWING
- STAMPED STRUCTURAL ENGINEERING NOTE: Kits include residential grade, double glazed wood windows & doors. Rough openings can be created to accommodate locally purchased windows & doors


















