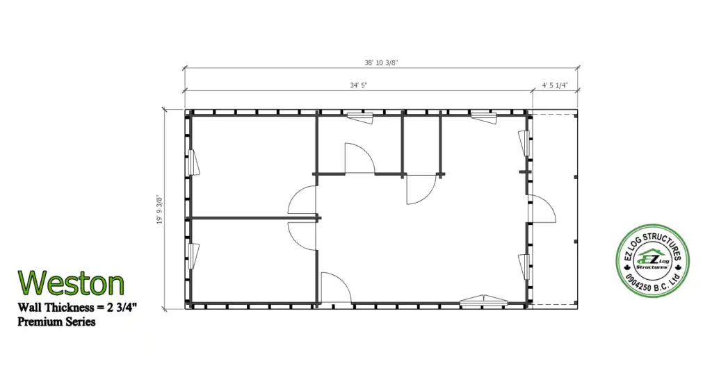
Weston is an afforable 2 bedroom home with a approx. 19′ x 33′ for a total footprint 630 sq’. The vaulted/cathedral ceiling provides plenty of interior height. This model can be assembled in 5 days with 3 people
Kit includes:
- ready to assemble on a concrete slab or wood foundation
- pre-cut, numbered exterior walls
- pre-cut, numbered interior walls
- pre-cut, numbered gable components
- vaulted, cathedral ceilings
- front wall height 103″ (2617mm)
- back wall height 89″ (2260mm)
- roof pitch 0.5/12 (2 degrees)
- pre-cut 4″x 8″ (100mm x 200mm) glulam roof purlins/beams, spaced 22″ (558mm) or less
- pre-cut, numbered 3/4″ (18mm) tongue & groove roof boards
- pre-cut, numbered fascia boards
- 1290 total sq’ of wall area
- 838 sq’ of exterior wall surface
- 161 lineal’ per row
- 4 interior doors 32″x 80″ (812mm x 2040mm), hardware
- 2 single wide wood windows 30″x 32″ (765mm x 812mm)
- 3 single wide wood windows 30″x 39″ (765mm x 990mm)
- 1 singe wide wood window 30″x 60″ (765mm x 1530mm)
- 1 double wide wood window 60″x 60″ (1530mm x 1530mm)
- 2 exterior door 36″x 80″ (990mm x 2040mm) 1/2 glass tempered, multi locking hardware
- deck posts
- 2 spare wall logs/spare roof boards
- 1,300 – 8″ log screws to connect each row, gable components, purlins
- packaged/wrapped and marked for sequence of assembly
- SHIPPING request a quote
- FOUNDATION SIZE DRAWING
- STAMPED STRUCTURAL ENGINEERING
NOTE: Kits include residential grade, double glazed wood windows & doors. Rough openings can be created to accommodate locally purchased windows & doors

















