Ontario Bunkie 160– decorative tool, storage, potting shed, man cave, she shed, bunkie, office, cabin
INSULATING DECORATIVE SHEDS
(Basic & Classic series are decorative sheds produced for seasonal use but can be upgraded to provide extended use)
FLOORS: rigid insulation can be installed between the treated floor beams before installing the tongue & groove flooring
CEILINGS: rigid insulation can be installed over the tongue & groove roof boards, then strapping is applied before installing metal roofing
WALLS: Insulating decorative sheds can only be done from the exterior due to the thickness of the wall
Wall Insulating : for the wall insulating use 2×4 or 2×6 studs, metal stud brackets plus 3/4″ wall cover boards or siding for exterior application. When insulating on the exterior the foundation must be larger. contact for a quote.

EXTERIOR
NOTE: Decorative sheds may need minor upgrades to meet structural requirements for obtaining building permits. In addition Basic Series models have single pane windows & doors & Classic Series models include mid-grade double glazed, weather-stripped windows but not intended for use as residential grade
Package: Length 236″ Width 44″ Height 29″ (3277 lbs.)
Tip: assemble on a LEVEL concrete slab, paving stones, or treated 4×4’s to raise the building off the ground
Assembly:
Video: see our video section to view assembly video
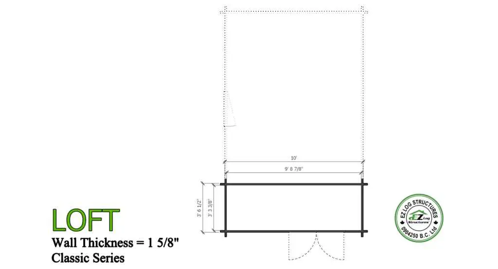
See the technical drawings above for a complete parts list in imperial or metric measurements













